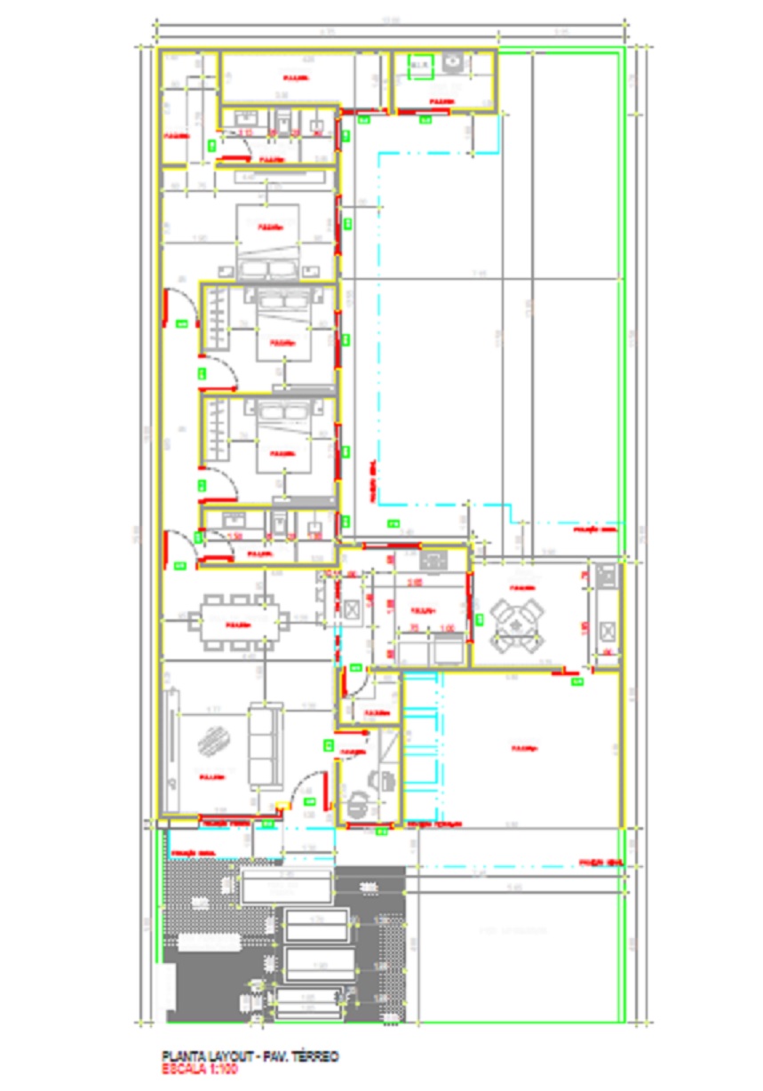
Estimativa de orçamento para construção de um sobrado de 03 quartos,
com área de 152 m2, em terreno 300 m² com dimensao 12m x 25m.
| DESCRIÇÃO | R$ |
| MATERIAIS | 0 |
| ESTRUTURA | 0 |
| ALVENARIA | 0 |
| LAJE | 0 |
| TELHADO | 0 |
| REBOCO | 0 |
| CONTRAPISO | 0 |
| ESQUADRIAS | 0 |
| PISOS E REVESTIMENTO | 0 |
| PINTURA | 0 |
| Aparelhos Hidráulicos | 0 |
| INSTALAÇÕES ELÉTRICAS | 0 |
| INSTALAÇÕES HIDRÁULICAS | 0 |
| MÃO DE OBRA | 0 |
| TOTAL R$ | 0 |
| Descrição | Und | Quantidade | Preço | Parcial |
|---|---|---|---|---|
| MATERIAIS | 0 | |||
| Estrutura - Estaca e Baldrames | 0 | |||
| Areia Lavada Fina | m2 | 0 | 0 | |
| Areia Lavada Média | m2 | 0 | 0 | |
| Brita | m2 | 0 | 0 | |
| Cimento | m2 | 0 | 0 | |
| Arame | m3 | 0 | 0 | |
| Prego | m3 | 0 | 0 | |
| Tábua de Madeira 30cm | m3 | 0 | 0 | |
| Sarrafo de Madeira 15cm | m2 | 0 | 0 | |
| Colunas Prontas Aço-6m | kg | 0 | 0 | |
| Gaiolas Sapatas | m3 | 0 | 0 | |
| Impermeabilizante 18KG | m2 | 0 | 0 | |
| Vedacit - Imperm. Reboco | m2 | 0 | 0 | |
| ALVENARIA | 0 | |||
| Cimento | m2 | 0 | 0 | |
| Tijolos | m2 | 0 | 0 | |
| Janelas | und | 0 | 0 | |
| Basculante WC | und | 0 | 0 | |
| Treliça T-08 Vergas e Contra-Vergas 12m | und | 0 | 0 | |
| Vedalit - Liga para Massa 1l | und | 0 | 0 | |
| Portinhola | und | 0 | 0 | |
| Grade Águas Pluviais | und | 0 | 0 | |
| LAJE | 0 | |||
| Cimento | m2 | 0 | 0 | |
| Escoras | m2 | 0 | 0 | |
| Laje c/ Isopor | m2 | 0 | 0 | |
| Tela POP Média - Malha de Ferro Laje 0,15 x 0,15 | m2 | 0 | 0 | |
| Barras de Ferro 5/16 - Lajes e Demais | m2 | 0 | 0 | |
| TELHADO | 0 | |||
| Telhas | m2 | 0 | 0 | |
| Cumeeira | m2 | 0 | 0 | |
| Estrutura do Telhado | m2 | 0 | 0 | |
| Pregos | m2 | 0 | 0 | |
| Manta Asfáltica (mão de obra + material) | m2 | 0 | 0 | |
| REBOCO | 0 | |||
| Cimento | m2 | 0 | 0 | |
| Contra-Piso e Calçada | 0 | |||
| Cimento | m2 | 0 | 0 | |
| ESQUADRIAS | 0 | |||
| Portas de Madeira | und | 0 | 0 | |
| Dobradiças | und | 0 | 0 | |
| Fechaduras | und | 0 | 0 | |
| Vedante | und | 0 | 0 | |
| Alisar | und | 0 | 0 | |
| Porta de Blindex | und | 0 | 0 | |
| Porta de Aluminio | und | 0 | 0 | |
| PISOS E REVESTIMENTO | 0 | |||
| Pisos, Revestimentos | m2 | 0 | 0 | |
| Rejunte | m2 | 0 | 0 | |
| Argamassa | m2 | 0 | 0 | |
| Pastilhas | m2 | 0 | 0 | |
| Bancada (para cozinha americana) | m2 | 0 | 0 | |
| Soleiras | m2 | 0 | 0 | |
| PINTURA | 0 | |||
| Verniz Pintura 3,6 litros | und | 0 | 0 | |
| Massa Corrida | m2 | 0 | 0 | |
| Selador para Parede | m2 | 0 | 0 | |
| Textura Colorida | m2 | 0 | 0 | |
| Tinta Acetinada (parede interna) | m2 | 0 | 0 | |
| Silicone (pias, janelas blindex...) | m2 | 0 | 0 | |
| Aguarrás | m2 | 0 | 0 | |
| Thinner | m2 | 0 | 0 | |
| Palha Aço | m2 | 0 | 0 | |
| APARELHOS HIDRÁULICOS | 0 | |||
| Vaso WC | u | 0 | 0 | |
| Lavatório WC | u | 0 | 0 | |
| Pia Inox (+ Granito ou Mármore) | u | 0 | 0 | |
| Tanque Lavanderia | u | 0 | 0 | |
| Chuveiros | u | 0 | 0 | |
| INSTALAÇÕES ELÉTRICAS | 0 | |||
| Eletrodutos (média) | u | 0 | 0 | |
| Quadro Energia - Centro de Distribuição | u | 0 | 0 | |
| Disjuntor Entrada | u | 0 | 0 | |
| Disjuntor 10 | u | 0 | 0 | |
| Disjuntor 15 | u | 0 | 0 | |
| Disjuntor 20 | m | 0 | 0 | |
| Disjuntor 35 | m | 0 | 0 | |
| Fio 16mm² | rolo | 0 | 0 | |
| Fio 25mm² | m | 0 | 0 | |
| Fio 1,5mm² | m | 0 | 0 | |
| Fio 2,5mm² | u | 0 | 0 | |
| Fio 4,0mm² | u | 0 | 0 | |
| Fio 10,0mm² | u | 0 | 0 | |
| Interruptor 1 Tecla/1 Tomada | u | 0 | 0 | |
| Interruptor 2 Teclas/ 2 Tomadas | u | 0 | 0 | |
| Interruptor 3 Teclas/3 Tomadas | u | 0 | 0 | |
| Interruptor 4 Teclas/4 Tomadas | u | 0 | 0 | |
| Caixa PVC 4x2 | u | 0 | 0 | |
| Caixa PVC 3x3 | u | 0 | 0 | |
| Caixa PVC 4x4 | u | 0 | 0 | |
| Placa 2x4 + Suporte | u | 0 | 0 | |
| Placa 4x4 + Suporte | u | 0 | 0 | |
| Luminária de Teto | u | 0 | 0 | |
| Spot de Teto | u | 0 | 0 | |
| Spot de Chão | u | 0 | 0 | |
| Arandela | u | 0 | 0 | |
| Sensor de Presença | u | 0 | 0 | |
| Gastos com Concessionária de Energia | u | 0 | 0 | |
| Lustre | u | 0 | 0 | |
| Fita LED Branca | u | 0 | 0 | |
| Caixa Alumínio 200x200x120 mm | u | 0 | 0 | |
| Caixa Alumínio 300x300x120 mm | u | 0 | 0 | |
| Tomada Rede RJ-45 (Internet) | u | 0 | 0 | |
| Tomada Rede RJ-11 (Telefone) | u | 0 | 0 | |
| Cabo Telefone | u | 0 | 0 | |
| Cabo Rede CAT-5 UTP 4 Pares (internet) | u | 0 | 0 | |
| Cabo Coaxial RG-6 95% (TV) | u | 0 | 0 | |
| INSTALAÇÕES HIDRÁULICAS | 0 | |||
| Tubo agua fria, 50mm x 6m | und | 0 | 0 | |
| Tubo agua fria, 25mm x 6m | und | 0 | 0 | |
| ÁGUA FRIA | 0 | |||
| Hidrômetro | u | 0 | 0 | |
| Caixa D'água | u | 0 | 0 | |
| Cavalete e Caixa | u | 0 | 0 | |
| Boia | u | 0 | 0 | |
| Tubo Soldável 25mm x 3.00m | u | 0 | 0 | |
| Joelho 90º Soldável 25mm | u | 0 | 0 | |
| Tê Soldável 25mm | u | 0 | 0 | |
| Registro de Gaveta Soldável 25mm | u | 0 | 0 | |
| Registro de Pressão Soldável 25mm | u | 0 | 0 | |
| Tubo Soldável 32mm x 3.00m | u | 0 | 0 | |
| Joelho 90º Soldável 32mm | u | 0 | 0 | |
| Tê Soldável 32mm | u | 0 | 0 | |
| Registro de Gaveta Soldável 32mm | u | 0 | 0 | |
| Tubo Soldável 40mm x 3.00m | u | 0 | 0 | |
| Joelho 90º Soldável 40mm | u | 0 | 0 | |
| Bucha de Redução 40x32mm | u | 0 | 0 | |
| Luva 25mm | u | 0 | 0 | |
| Luva 32mm | u | 0 | 0 | |
| Luva 40mm | u | 0 | 0 | |
| Válvula Hídrica | u | 0 | 0 | |
| Engate Flexivel | u | 0 | 0 | |
| ÁGUA QUENTE | 0 | |||
| Boiler | u | 0 | 0 | |
| Tubo Soldável 28mm x 2.5m | u | 0 | 0 | |
| Joelho 90º Soldável 28mm | u | 0 | 0 | |
| Tê Soldável 28mm | u | 0 | 0 | |
| Registro de Gaveta Soldável 28mm | u | 0 | 0 | |
| Registro de Pressão Soldável 28mm | u | 0 | 0 | |
| Tubo Soldável 35mm x 2.5m | u | 0 | 0 | |
| Joelho 90º Soldável 35mm | u | 0 | 0 | |
| Tê Soldável 35mm | u | 0 | 0 | |
| Registro de Gaveta Soldável 35mm | u | 0 | 0 | |
| Bucha de Redução 28mmx35mm | u | 0 | 0 | |
| Luva de 28mm | u | 0 | 0 | |
| Luva de 35mm | u | 0 | 0 | |
| Misturador 25mm | u | 0 | 0 | |
| Aquecedor Solar | u | 0 | 0 | |
| ESGOTO | 0 | |||
| Caixa de Inspeção | u | 0 | 0 | |
| Caixa de Gordura | u | 0 | 0 | |
| Caixa Sifonada Redonda c/ 8 entrada | u | 0 | 0 | |
| Tubo de Esgoto Série Normal DN 40mm | u | 0 | 0 | |
| Joelho 90º Esgoto Série Normal DN 40 | u | 0 | 0 | |
| Joelho 45º Esgoto Série Normal DN 40 | u | 0 | 0 | |
| Curva 90º Curta Esgoto Série Normal DN 40 | u | 0 | 0 | |
| Luva 40mm | u | 0 | 0 | |
| Tubo de Esgoto Série Normal DN 50mm | u | 0 | 0 | |
| Joelho 90º Esgoto Série Normal DN 50 | u | 0 | 0 | |
| Joelho 45º Esgoto Série Normal DN 50 | u | 0 | 0 | |
| Curva 90º Curta Esgoto Série Normal DN 50 | u | 0 | 0 | |
| Luva 50mm | u | 0 | 0 | |
| Tubo de Esgoto Série Normal DN 100mm | u | 0 | 0 | |
| Joelho 90º Esgoto Série Normal DN 100 | u | 0 | 0 | |
| Joelho 45º Esgoto Série Normal DN 100 | u | 0 | 0 | |
| Curva 90º Curta Esgoto Série Normal DN 100 | u | 0 | 0 | |
| Luva 100mm | u | 0 | 0 | |
| Tê 90º Esgoto 100mmx50mm | u | 0 | 0 | |
| Junção "Y" 45º 100x100mm | u | 0 | 0 | |
| Tampa de Esgoto T33 | u | 0 | 0 | |
| Valvula para Lavatório, sem unho | u | 0 | 0 | |
| Sifão 1" | u | 0 | 0 | |
| Válvula para Pia Americana | u | 0 | 0 | |
| Sifão 1.1/4" Roscável | u | 0 | 0 | |
| Válvula para Tanque com Saída Roscavel | u | 0 | 0 | |
| Luva de Correr 40mm | u | 0 | 0 | |
| Vedação para Saída de Vaso Sanitário | u | 0 | 0 | |
| Tê 90º Esgoto 100mmx40mm | u | 0 | 0 | |
| Junção "Y" 45º 100mmx40mm | u | 0 | 0 | |
| MÃO DE OBRA | 0 | |||
| Estrutura - Baldrames | m | 0 | 0 | |
| Estrutura - Estacas | m | 0 | 0 | |
| Impermeabilização do Baldrame | m | 0 | 0 | |
| Alvenaria | m | 0 | 0 | |
| Laje | m | 0 | 0 | |
| Desempeno | m | 0 | 0 | |
| Telhado | m | 0 | 0 | |
| Batentes | m | 0 | 0 | |
| Reboco e Janelas | m | 0 | 0 | |
| Contra-piso | m | 0 | 0 | |
| Gesso Cola na Laje | m | 0 | 0 | |
| Gesso Sanca (detalhe) | m | 0 | 0 | |
| Forro PVC | m | 0 | 0 | |
| Pisos e Revestimentos | m | 0 | 0 | |
| Portas | m | 0 | 0 | |
| Pintura e Texturas | m | 0 | 0 | |
| Instalação de Aparelhos | m | 0 | 0 | |
| Hidraulica e Esgoto | m | 0 | 0 | |
| Elétrica | m | 0 | 0 | |
| Fossa e Sumidouro | m | 0 | 0 | |
| Calçada | m | 0 | 0 | |
| Escada (mão de obra + material) | m | 0 | 0 | |
Observação: os resultados não são exibidos nesta visualização
Este orçamento de construção corresponde ao modelo de arquitetura que se pode observar nas imagens. As quantidades de material calculadas são baseadas nas dimensões mostradas. O usuário também pode considerá-los válidos para áreas a serem construídas maiores ou menores que 10 m².
Estimativa tipo (2). Preços de materiais e mão de obra